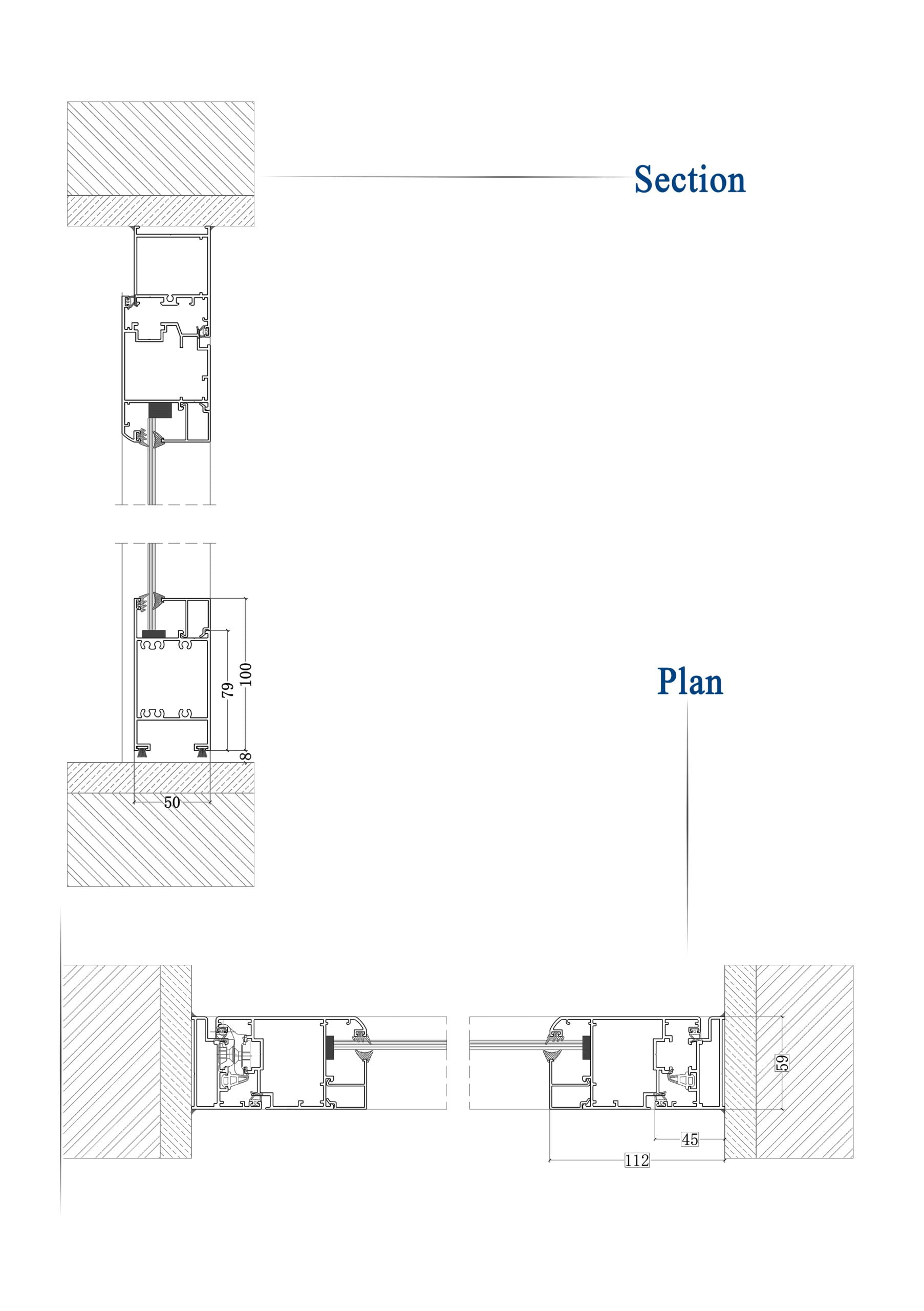
Introducing the NOVA 50D, an aluminum door featuring a 50mm frame. Explore diverse glass combinations, complemented by Bridge hinges, allowing a wide 180-degree opening. Enjoy customizable door closure options and the choice of a cylindrical lock for added security.